Apro-Hirdetesek.Com

Új hirdetés hozzáadása
I.ker. dunai panorámás, extra lakás eladó
I.ker. dunai panorámás, extra lakás eladó I.ker. dunai panorámás, extra lakás eladó I.ker. dunai panorámás, extra lakás eladó I.ker. dunai panorámás, extra lakás eladó I.ker. dunai panorámás, extra lakás eladó

I.ker. dunai panorámás, extra lakás eladó

Leírás

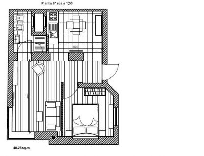
Panorámás ajánlat! I. ker. Fő utcában , dunai panorámás, 40 nm-es, 1,5 szobás, építés alatt lévő luxus lakás eladó egy felújított, liftes épület 6. emeletén. Egyik irányból a Parlamentre, Dunára,Margit-szigetre panorámás, másik irányból a Budai Várra, Halászbástyára, Mátyás templomra panorámás lakás kiváló választás lakás céljára, befektetésnek, kiadásra. Cirkó fűtés, minden egyedi mérős. Irányár:27mFt. Érdeklődni:+36 20 417 53 56

Részletek

Kategória: Eladó Lakást Kínál

Helység: Pest megye

Közzétéve: 2012-11-25

Megtekintések: 1261

Hasonló hirdetések

[ AdSense Block - Anunț Safe ]